- Thông tin chung
Tên dự án: Fusion Suites Vũng Tàu
Chủ đầu tư: Công ty CP Phát triển nhà Bà Rịa - Vũng Tàu (HODECO)
Địa chỉ: 2 Đường Trương Công Định, Phường 2, Vũng Tàu, Bà Rịa Vũng Tàu
Tổng diện tích: 1.968 m²
Mật độ xây dựng: 55 %
Loại hình phát triển: Dự án khác
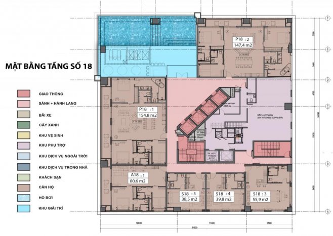
Quy mô dự án: 20 tầng, 171 phòng (71 phòng khách sạn và 100 căn hộ)
- Giới thiệu dự án
Fusion Suites Vũng Tàu là dự án căn hộ du lịch kết hợp khách sạn cao cấp đạt tiêu chuẩn 5* đầu tiên tại Vũng Tàu do Công ty cổ phần phát triển nhà BR -VT (HODECO) làm chủ đầu tư.
Với mục tiêu đem dịch vụ nghỉ dưỡng vào trong lòng đô thị và mang tới luồng gió mới cho ngành khách sạn tại Vũng Tàu, Fusion Suites Vũng Tàu không chỉ là không gian nghỉ dưỡng đẳng cấp mà còn tạo ra cơ hội đầu tư lí tưởng dành cho các nhà đầu tư nhanh nhạy, thức thời.
Fusion Suites Vũng Tàu được phát triển trên khu đất quy hoạch rộng 1.968,3m2 với mật độ xây dựng chỉ chiếm 55% diện tích toàn khu. Dự án cao 20 tầng (chưa gồm tầng hầm, tầng lửng và tầng kỹ thuật), 100 căn hộ nghỉ dưỡng, 71 phòng khách sạn cùng nhiều khu dịch vụ, tiện ích cao cấp đi kèm.
Đa phần các căn hộ và phòng khách sạn tại dự án đều sở hữu view biển đẹp, thiết kế tinh tế, mang lại cảm giác thư giãn tối đa cho khách hàng. Từ kiến trúc bên ngoài cho đến thiết kế nội thất bên trong mỗi căn hộ đều được khơi nguồn cảm hứng từ những sắc màu, phong vị của biển, tạo nên một không gian sống thân thiện, xanh mát vô cùng lý tưởng. Tất cả những điều đó tạo nên trải nghiệm tuyệt vời đối với mỗi du khách và dấu ấn riêng, sự khác biệt của dự án so với các khách sạn khác tại Vũng Tàu.
- Tên dự án: Fusion Suites Vũng Tàu
- Vị trí: số 2, Trương Công Định, Phường 2, Tp.Vũng Tàu
- Tổng diện tích khu đất: 1.968,3m2
- Mật độ xây dựng: 55%
- Chiều cao: 20 tầng chưa gồm tầng hầm, tầng lửng và tầng kỹ thuật
- Tổng diện tích sàn xây dựng: 25.746 m2
- Tổng số phòng: 171 phòng, bao gồm 71 phòng khách sạn và 100 căn hộ.
- Phân tầng chức năng: 01 tầng hầm, 10 tầng căn hộ
+ 05 tầng các phòng chức năng, dịch vụ
+ 05 tầng các phòng khách sạn

- Vị trí
Fusion Suites Vũng Tàu có vị trí tại số 2 Đường Trương Công Định, Phường 2, TP. Vũng Tàu, Bà Rịa Vũng Tàu.

- Hạ tầng
Fusion Suites Vũng Tàu được xây dựng chuỗi các tiện nghi chất lượng, xứng tầm đẳng cấp 5*, hứa hẹn mang tới xu hướng nghỉ dưỡng mới và thời thượng hơn cho ngành khách sạn tại TP. Vũng Tàu:
- Khu vực sảnh lễ tân đón khách sang trọng
- Cafe sân vườn Fresh &Go được bài trí vô cùng ấn tượng
- Nhà hàng ẩm thực Zen - nơi tinh hoa ẩm thực Việt Nam, Châu Á và quốc tế hội tụ
- Quầy Bar sân thượng có bể bơi lớn, view biển đẹp mắt
- Iris Spa mang đến những trải nghiệm khác biệt
- Phòng tập Gym, Yoga hiện đại
- Dịch vụ chăm sóc trẻ em, Hair salon, Make up… đem đến thêm nhiều lựa chọn cho khách hàng









Bên cạnh đó, với vị trí chiến lược tại khu vực trung tâm thành phố, ngay khu đất có 3 mặt tiền đường: Phan Bội Châu, Trương Công Định, Nguyễn Công Trứ - Fusion Suites Vũng Tàu nghiễm nhiên sở hữu liên kết vùng vô cùng thuận lợi:
- Gần kề đường Hạ Long – con đường đẹp nhất Việt Nam
- 2 phút đi bộ đến công viên Bãi Trước,
- Trong vòng bán kính 500m là hệ thống nhà hàng cao cấp, trung tâm văn hóa thể thao, khu du lịch, bến tàu cánh ngầm…
- Thiết kế - Mặt bằng





- Hỗ trợ tài chính
Lộ trình thanh toán
Phương thức thanh toán khi mua hàng tại dự án
- Khách hàng thanh toán 40% chia làm 2 đợt, Ngân hàng BIDV tài trợ 60%. Trong thời gian xây dựng và chạy thử dự án (dự kiến đến hết 2019), khách mua sẽ được ân hạn trả nợ gốc và hưởng lãi suất 0%
- Khách hàng bắt đầu trả nợ gốc (hàng năm) và lãi vay bắt đầu từ năm 2020. Nguồn trả nợ từ thu nhập được chi trả từ CĐT với mức tối thiểu là 8%/năm trên giá trị trước thuế của căn hộ.
- Nếu thu nhập không đủ trả nợ gốc vay trong năm, Chủ đầu tư HODECO sẽ tạm ứng cho khách hàng và được trừ vào các năm có thu nhập dư (dương sau khi trả nợ)
- Thời gian vay tới 20 năm, miễn phí trả nợ trước hạn. Phạm vi cho vay: BIDV Bà Rịa - Vũng Tàu hỗ trợ cho vay cả khách hàng các tỉnh khác như Hà Nội, Tp.HCM...